TEKNİK  RESİM

VE

MESLEK RESİM

(METAL TEKNOLOJİSİ ALANI)

Motif

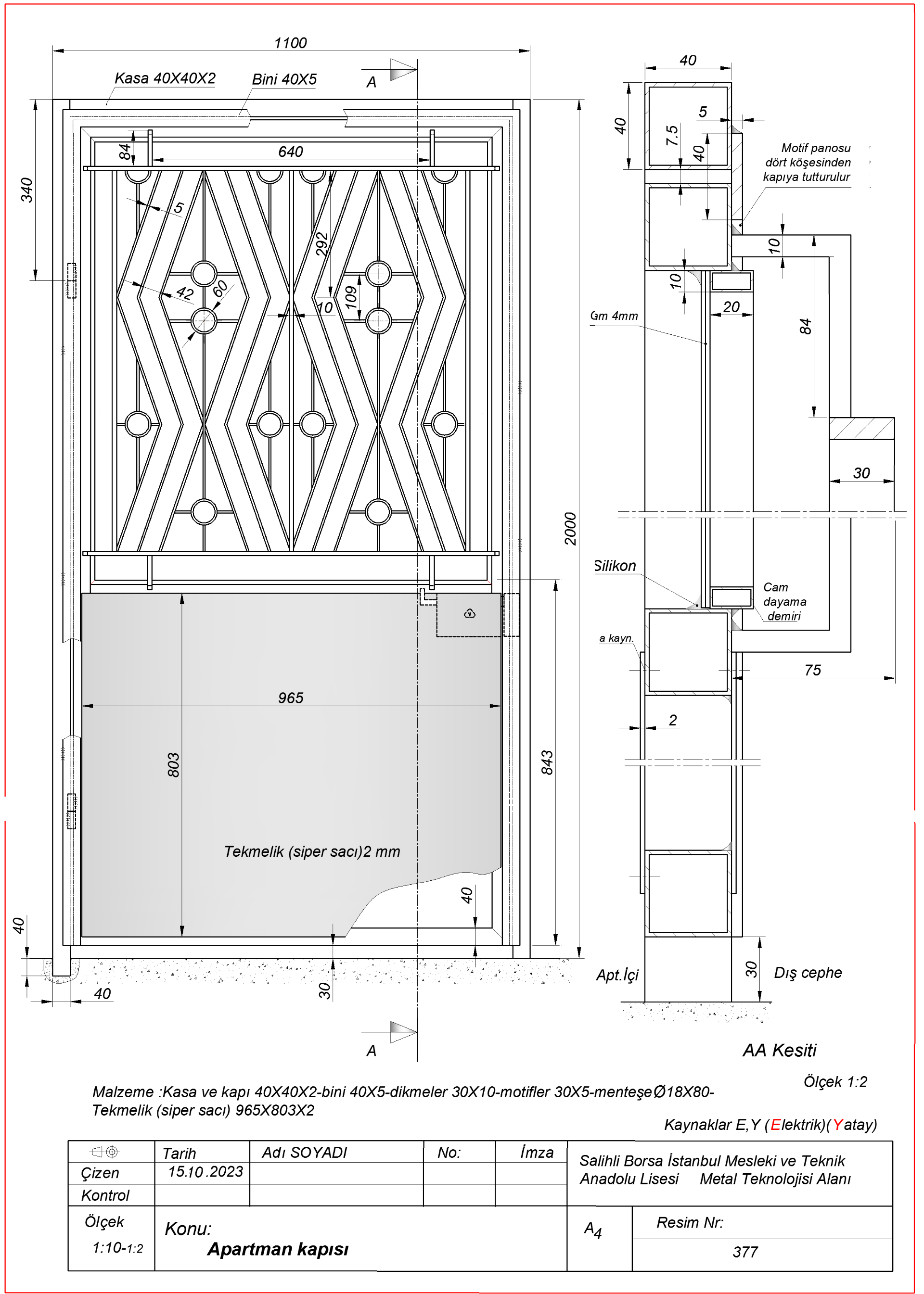
apartment entrance door

Bahçe parmaklığı

maliyet hesabı pencere malouş fiyatı

apartment door apartment entrance door

garden door

fence on the wall

mirror frame

Not:Teknik resim ve Meslek resim'de renklendirme kullanılmaz.Öğrencilerimizin konuyu daha iyi kavrayabilmeleri için , bazen renklendirme kullanıyorum.

1723-10-10-24

225

Dah fazla çizim ve bigi için lütfen tarayıcınızdan"metalisleri4545"İ aratınız

                          Duvar aplikleri

#wall sconces #wall decorations

SAYFA SONU

-bini40X5-

-bini40X5-

(Professional Painting) echnical Drawing etal Technology Field

2684

ÇİZİMLER EĞİTİM  AMAÇLIDIR.

2684

2684

2684

2684